图知网
搜索
首页
热门推荐
图片分类
2021网红微卷烫发型,超好驾驭的网红卷发发型
下载原图
相关图片
公主李韩式发型假发女网红中长发假发套气质大波浪长卷发全头套
厂家批发假发女长发漫画刘海网红圆脸大波浪蓬松全头套式长卷发
网红发型长卷发造型烫
u型假发女长卷发大波浪彩色渐变半头套隐形无痕修脸网红发型长发
绝版大网红微卷发
ins瑜伽网红超火的9款卷发,不但平定北方显脸小还减龄,网友|发型|空气
为你推荐
angelababy古装清冷感
帅炸了!王一博get新技能打碟超吸睛,短发干净利落绝绝子!
#假面骑士时王#
v-视觉##王俊凯elle四月刊封面
陈娟.陈娟,1972年出生,江西永修人,在职研究生学历,时任 - 抖音
高清海边壁纸
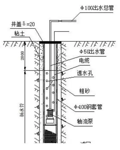
回灌井点和降水井点区别,回灌井点作用
红衣似火,热烈张扬的女生头像#古风头像 #优质头像 #古风 - 抖音