图知网
搜索
首页
热门推荐
图片分类
奶萌小女孩手绘头像
下载原图
相关图片
手绘可爱萌娃女生头像
萌萌大眼手绘头像超可爱个人专属卡通形象
萌萌哒甜味女生头像
高清好看的手绘女生头像
头像 女生头像 闺蜜头像 手绘头像
可爱的女生手绘头像
为你推荐
身字笔画笔顺身字怎么写
新的情侣头像
娱乐圈改过名字的明星,明星改名请什么人改的|成龙|周迅|艺名|李易峰
李准基,李俊基帅气韩国明星电脑桌面壁纸
在这部剧中,车晓是孙红雷的初恋,王耀庆等了好多年的女人,还是气质
环形墨染图片 - 第9张
马嘉祺这组红衣造型好惊艳,带刺的红玫瑰,绝美|马嘉祺|红玫瑰|彩虹
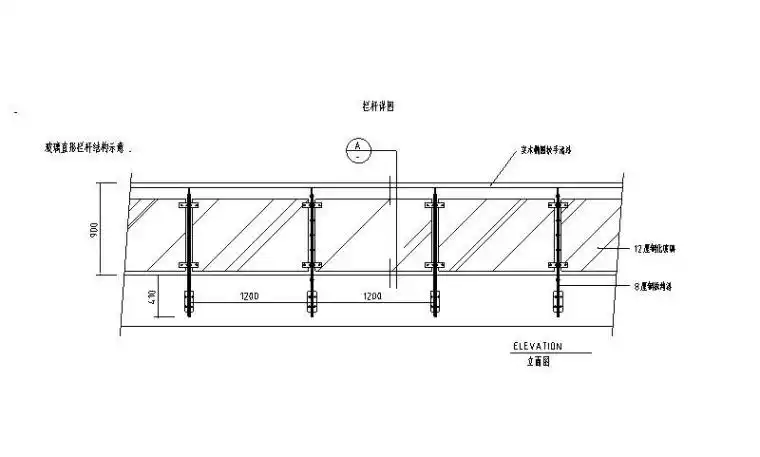
玻璃栏杆结构详图