图知网
搜索
首页
热门推荐
图片分类
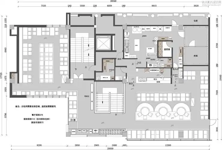
餐厅饭店装修平面布局设计图
下载原图
相关图片
建筑面积:4000㎡ 楼层数:2层 内容包含:平面布置图,立面布置图,餐厅
餐厅的平面图,望高手给点意见
[湖南]中式风格大型中餐厅装修施工图
餐饮的平面图已经给你放到下面了作个掺考看吧,还要其他的餐厅cad和
二层平面图项目信息——项目名称:老港路餐厅项目地点:河北秦皇岛
无锡 项目类型:西餐牛排餐厅 项目单位:悟塬空间设计 ▼ ▏平面
为你推荐
卡通爱情情人甜蜜粉红广告背景
扎布耶茶卡:羌塘的天空之镜
三国前五大名将排行(校园kol)
纸杯手工花 清明节快到了,用纸杯做个漂亮的菊花吧,简单又好看
高冷双人黑白情侣头像一对两张图片
蓝宝石戒指
美队3中的钢铁侠战甲 马克46
天奇生活 影视 > 正文 《格格要出嫁》是由倪睿思,朱泳腾,林青