某直花架cad节点施工构造设计图

相关图片

单臂花架做法

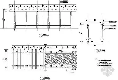
花架详图(一)

2015-11-10 10:17素材模式:会员免费描述:单臂花架施工图cad图纸免费

某精美景观花架cad详图

花架详图

随机推荐

这就是街舞炫酷个性街道场景图片壁纸

蔡徐坤真宠baby,当众向她撒娇求表扬,看呆路人:不愧是姐弟cp|杨颖

肖战出镜全新gucci1955包广告,身背1955手袋轻松漫步于米兰街头

心的笔顺笔画顺序枢纽主要的腹

r1se赵磊 r1se 主唱 赵磊(侵权删

4k 动漫 风景 云 夜景 星星 流星 天空 星空 高清 壁纸

盛世华章

绿雕景观